Tourism Fernie Home Page
Book Your Trip
  • Book Your Trip
  • Fully equipped design centre in Cranbrook
  • Custom home design to suit your lifestyle
  • Custom renovations and remodelling
  • Ready-made house plans available to suit all budgets
  • Spectacular interiors featuring natural materials
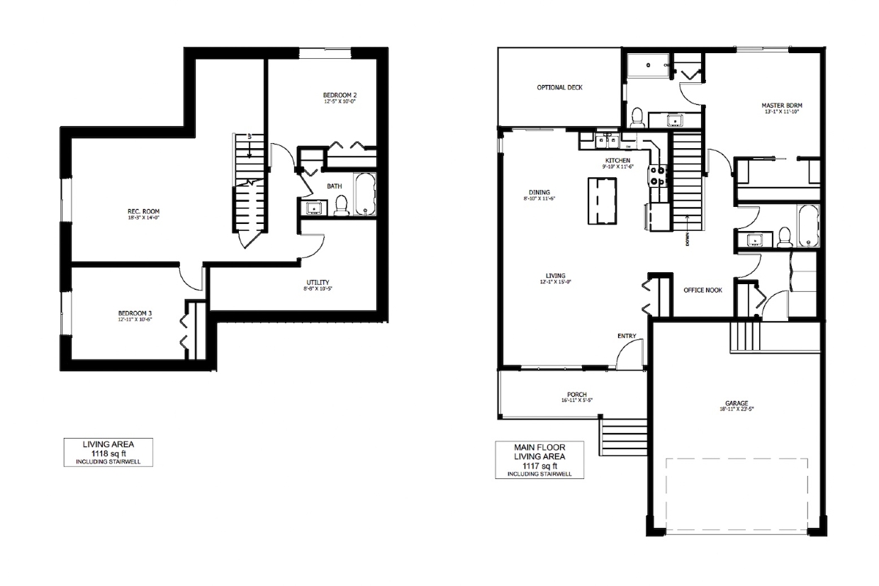
  • The Albert floorplan - just one of many ready-made and fully customisable house designs
  • Thoughtfully designed to suit the local landscape

New Dawn Developments are an award-winning construction and land development company with offices in Fernie and Cranbrook. 

As a Fixed Price Builder, New Dawn Developments takes the guesswork out of building a home. The price you receive at the beginning of the project, is the price you pay when your home is done. This approach helps prevent cost overruns, keeps project milestones on time and makes financing easier to manage. It also allows you to look forward to your home the way you envisioned it.

With your budget and financing taken care of, the risk is off your shoulders, and now you can focus on the joy of building your dream home!

You want a home that is unique, but you are concerned about the cost of building what is traditionally considered a luxury. You are not alone; as a custom home builder, New Dawn Developments hear many concerns along these same lines. However, the truth is that building a custom home doesn’t have to cost more. With a comprehensive design process and decades of experience in the construction industry, New Dawn Developments can ensure that you get what you want at a price that doesn’t have to exceed your budget. Along with a cohesive team of professionals and the best subtrades in the business, New Dawn Developments provides top-quality work at highly competitive prices.

FULL IN HOUSE DESIGN SERVICES

Visit the Design Centre in Cranbrook, filled wall to wall, floor to ceiling with the latest interior and exterior design innovations.

Choose from a range of Ready-Made Home Designs or customise everything from start to finish. 

CUSTOM HOME DESIGN

  • Complete structural plans, including electrical drawings, building sections, and exterior elevations
  • Project Specifications unique to your home outlining all the details involved in building your home from framing to faucets – this document is used with your home plans for a complete price tender
  • Cabinet design drawings for kitchens, baths, laundry rooms and bars
  • Fireplace design drawings

RENOVATIONS

New Dawn Developments is proud to assist you with your next renovation project. With over four decades of industry experience, renovation expertise spans from kitchen and bathroom renovations to exterior, full home renovations, and so much more. 

PLUS:

MULTI FAMILY PROJECTS
COMMERCIAL BUILDS
LAND DEVELOPMENT

Throughout your build, a Site Supervisor will oversee all work. They will coordinate trades and continually work on scheduling to guarantee possession, which usually is 8-12 months from digging the foundations. A full Estimating Department will work to ensure the most competitive pricing, best trades and latest in product innovations for your home. On completion of your project, the Service Department takes over. They will assist you with any questions or concerns you may have during your first year and ensure that you are 100% satisfied with your new home and your New Home Warranty Coverage. 

  • Contact Information
  • 250-423-2080
  • Contact By Email
  • www.newdawndevelopments.com/community/fernie-elk-valley
  • Fernie Common, 1602 9th Ave, BC V0B 1M0
  • Share